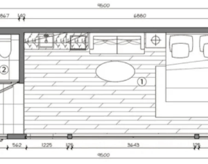
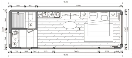
Capsula Modulara EcoPod 29.8 m²

32.500,00